Additional Information
This attractive, deceptively spacious mid terrace property is ideally located just off Ormeau Road.
Having been extensively renovated in 2018 the property is superbly finished and immaculately presented by the current owners and is presented to the highest specification. All works were carried out with full Building Control Approval and, of particular note, the renovation included full rewiring and replumbing along with a damp proof course and installation of a positive input ventilation system and a Worchester combi gas boiler.
In addition, the property features tiles by David Scott, engineered timber floor by Ceco and a fitted kitchen by Johanna Montgomery.
Along with the modernisation works the owners have maintained many fine characteristics and original features of a property of this age including original 4 panel internal doors, a salvaged Belfast sink in the kitchen along with cornicing and original plaster work.
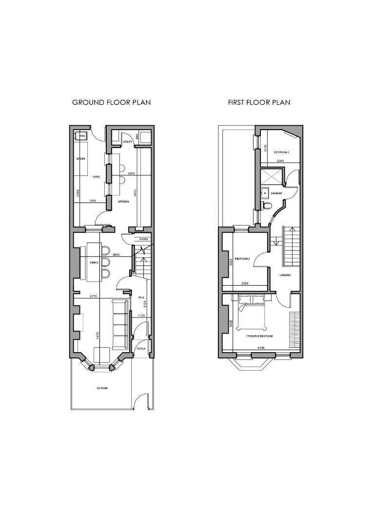
The accommodation briefly comprises a generous lounge open plan to dining room and leading to the separate bespoke kitchen and utility room on the ground floor. On the upper floor there are three bedrooms and a shower room. In addition, the property benefits from double glazed windows and gas central heating.
Situated close to many local amenities on Ormeau Road, including shops and public transport, as well as being convenient to Belfast City Centre and Queens University, this delightful property is ideal for either owner occupiers or investors and viewing is highly recommended.
Front door with 3-point locking and a glazed fan light to entrance porch.
ENTRANCE PORCH Stone floor, glazed door to reception hall.
RECEPTION HALL Engineered timber flooring, cornice ceiling.
LOUNGE 24' 6" x 10' 4" (7.479m x 3.17m) (including Dining Room) Engineered timber flooring, feature glass fronted cast iron stove with slate tiled hearth, low voltage spotlights, cornice ceiling, bay window.
OPEN PLAN TO DINING ROOM Engineered timber flooring, attractive cast iron fireplace, built in storage, under stairs storage, low voltage spotlights.
KITCHEN WITH BREAKFAST AREA BY JOHANNA MONTGOMERY 14' 7" x 7' 4" (4.470m x 2.240m) Extensive range of high and low level units, granite work surfaces with feature tiled splash back, Hotpoint four ring gas hob with electric oven under, extractor fan over, integrated dishwasher, integrated CDA microwave oven, built in wine racks, matching engineered timber flooring, concealed under unit lighting, low voltage spotlights, integrated fridge, salvaged Belfast sink unit.
UTILITY ROOM 28' 6" x 7' 4" (8.69m x 2.240m) Engineered timber flooring, plumbed for washing machine, new Worcester Combi Gas Boiler (with service history on request).
FIRST FLOOR LANDING Access to floored roof space.
BEDROOM 14' 3" x 10' 10" (4.359m x 3.325m)
BEDROOM 10' 10" x 8' 4" (3.325m x 2.555m) Cornice ceiling.
BEDROOM 7' 4" x 6' 11" (2.240m x 2.110m) Cast iron fireplace.
SHOWER ROOM White suite comprising walk in fully tiled shower cubicle with rainwater shower, low flush WC, vanity unit with splash tiling, tiled floor, low voltage spotlights, extractor fan.
OUTSIDE Paved front garden with planting with path to front door. Enclosed rear yard.