Share with a friend

Please check you have entered all details correctly:

Options

Site @, 75 Back Road, Drumbo, Lisburn BT27 5LB

  • Site
£197,750

Key Information

Address Site @, 75 Back Road, Drumbo, Lisburn, BT27 5LB
Price Last listed at Offers over £197,750
Land type Site
Status Agreed
Book a viewing Our images can only show so much, so why not get a closer look at what could be your next home? Book a viewing

Features

  • Private Site extending to approx. 0.4 acres
  • Magnificent Uninterrupted Views Over Open Countryside
  • Convenient to Belfast, Lisburn and Surrounding Areas
  • Superb Rural Location
  • Planning Permission for Erection of a Private Dwelling with Detached Garage
  • Planning Ref S/2007/0472/F

Additional Information

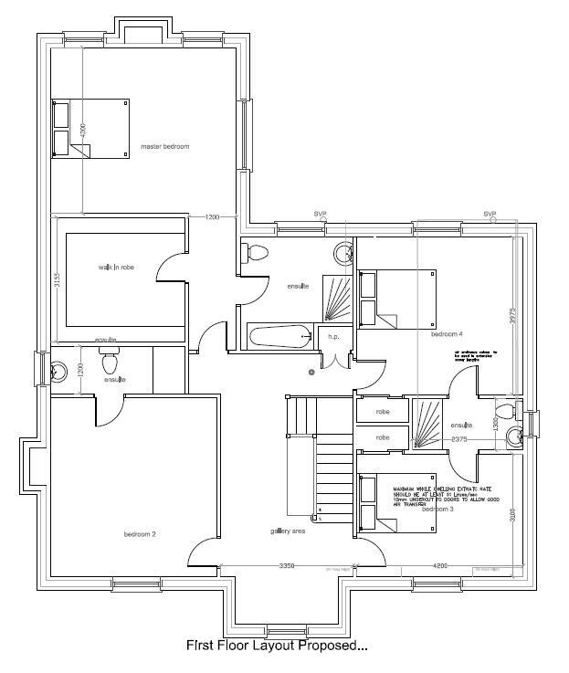
This is an excellent opportunity to purchase this stunning site with full planning permission passed for a detached family home of approximately 2,650 sq. ft. In addition, there is planning for a detached garage.

The site is superbly located with the elevated setting affording excellent viewings of the surrounding countryside and is convenient to many parts of the province including Belfast, Lisburn and Carryduff.

The property itself is configured to provide bright spacious living accommodation to take full advantage of this unique site. There are four sizeable bedrooms plus three reception rooms.

We would actively encourage those interested to visit the site to get a better sense of how special the setting is.
Photo 2 of Site @, 75 Back Road, Drumbo, Lisburn

Get in touch

Fill in your details below and a member of our team will get back to you.

Please check you have entered all details correctly:

Free Valuations